Grundstücke und Immobilien
in Bad Königshofen
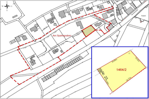
Am Spahngraben 23
| TYP | Gemeindliches Baugrundstück |
| ORTSTEIL | Althausen |
| LAGE | Am Spahngraben 23 |
| GROESSE | 633 m² |
| PREIS | auf Anfrage |
Am Spahngraben 21
| TYP | Gemeindliches Baugrundstück |
| ORTSTEIL | Althausen |
| LAGE | Am Spahngraben 21 |
| GROESSE | 621 m² |
| PREIS | auf Anfrage |
Am Spahngraben 19
| TYP | Gemeindliches Baugrundstück |
| ORTSTEIL | Althausen |
| LAGE | Am Spahngraben 19 |
| GROESSE | 913 m² |
| PREIS | auf Anfrage |
Oberer Schmalgarten 13
| TYP | Gemeindliches Baugrundstück |
| ORTSTEIL | Aub |
| LAGE | Oberer Schmalgarten 13 |
| GROESSE | 906 m² |
| PREIS | auf Anfrage |
Oberer Schmalgarten 11
| TYP | Gemeindliches Baugrundstück |
| ORTSTEIL | Aub |
| LAGE | Oberer Schmalgarten 11 |
| GROESSE | 956 m² |
| PREIS | auf Anfrage |
Oberer Schmalgarten 9 (reserviert)
| TYP | Gemeindliches Baugrundstück |
| ORTSTEIL | Aub |
| LAGE | Oberer Schmalgarten 9 |
| GROESSE | 1.058 m² |
| PREIS | auf Anfrage |
Oberer Schmalgarten 7 (verkauft)
| TYP | Gemeindliches Baugrundstück |
| ORTSTEIL | Aub |
| LAGE | Oberer Schmalgarten 7 |
| GROESSE | 1.271 m² |
| PREIS | auf Anfrage |
Zehntstraße 8
| TYP | Gemeindliches Baugrundstück |
| ORTSTEIL | Althausen |
| LAGE | Zehntstraße 8 |
| GROESSE | 1050 m² |
| PREIS | 27.563 € |
Am Spahngraben 9
| TYP | Gemeindliches Baugrundstück |
| ORTSTEIL | Althausen |
| LAGE | Am Spahngraben 9 |
| GROESSE | 1138 m² |
| PREIS | auf Anfrage |
Über den Link links Formulare / Sonstige – finden Sie das passende Formular für die Bewerbung um einen Bauplatz.








